TEATRO, SALÓN DE ACTOS Y SALA
DE EXPOSICIONES CONDE DUQUE
LOCALIZACIÓN: CHAMBERÍ, MADRID
PROPIEDAD: AYUNTAMIENTO DE MADRID, AREA DE GOBIERNO DE LAS ARTES
SUPERFICIE: 2.574,91 m2
ARQUITECTO: JUSTO BENITO BATANERO
PRESUPUESTO: 14.062.801,85 €
TIPOLOGÍA: REHABILITACIÓN
EL CUARTEL DEL CONDE DUQUE conforma el extremo oeste del barrio de Universidad, conocido popularmente como Malasaña, del distrito Centro de Madrid. Construido en 1717, por el arquitecto madrileño Pedro de Ribera, configura uno de los mayores centros de cultura y de ocio de la ciudad a través de una programación con diferentes conciertos, exposiciones y ferias a lo largo del año. Estas intervenciones forman parte de la última fase de la Rehabilitación del Edificio Conde Duque, que con una planta rectangular de 228 metros de largo por 83 metros de ancho y tres grandes
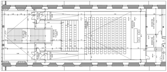
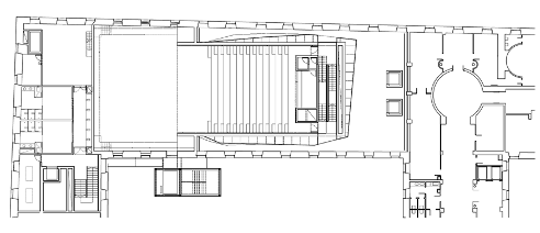
patios en el interior, el central concebido como un patio armas dada su dimensión, es uno de los edificios de mayores dimensiones de Madrid. Esta intervención se centra en las dependencias que conforman la mitad sur alrededor del Patio Sur y la zona inferior del Patio Central. Son tres actuaciones objeto de procesos de licitación independiente: el salón de Actos Culturales, las salas de Exposiciones y el teatro municipal junto con otras dependencias anejas vinculadas a la crujía sur.
El Salón de Actos, con una capacidad para 293 personas, ocupa la nave inter- patios, en esta planta y en la superior de nueva creación. La sala, a través de la tribuna comunica con la segunda planta. Se concibe como una caja de madera formada por enlistonados que se inserta entre fachadas y cubierta con unos márgenes a modo de pasillos que permiten
ocultar todas las instalaciones y registrarlas. Se pretende una limpieza máxima al interior sin elementos, funcionando pero ocultos, que resten protagonismo a la madera o distraigan la atención. Toda la instalación de aire acondicionado, se lleva por falso suelo, con distribución por debajo de las butacas. Este ejercicio donde el Edificio Conde Duque hace de contenedor de otro volumen se radicaliza en el Teatro Municipal concebido como un volumen totalmente compacto cuyo perímetro es circundado. Además, en esta mitad sur también se interviene para configurar las salas de exposiciones y la sala de bóvedas, con trabajos de reconstrucción de las fábricas consolidando estos espacios y su estructura a través de la limpieza con agua, el picado de los elementos más deteriorados e incluso la aplicación de consolidante e hidrofugante en caso de que sea necesario.
Realizamos un trabajo integral. Nuestros proyectos abarcan desde la concepción del plan hasta la ejecución 360º.



