
IES ELISA SORIANO FISCHER
PRIMERA FASE
LOCALIZACIÓN: GETAFE, MADRID
PROPIEDAD: CONSEJERIA DE EDUCACIÓN E INVESTIGACION, COMUNIDAD DE MADRID
SUPERFICIE: 1.997,20 m2
ARQUITECTO: ARMILAS, ESTUDIO DE ARQUITECTURA, S.L.
PRESUPUESTO: 2.046.091,97 €
TIPOLOGÍA: NUEVA PLANTA
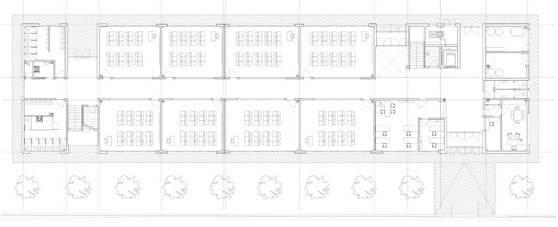
LA PRIMERA FASE del IES Elisa Soriano Fischer consiste en la construcción de 10 aulas de secundaria, 5 aulas específicas, dos aulas desdoble, seminarios y pista deportiva en el barrio El Bercial en el termino municipal de Getafe próximo a su límite con Leganés. El edificio se sitúa en el extremo noreste de la parcela, en la confluencia de la calle Venezuela con la avenida de México. De esta manera, se garantizan dos ejes paralelos a dichas calles para el futuro crecimiento del centro educativo. Esta primera fase sirve como patrón para las futuras construcciones, por lo que se contemplan dos niveles de forma que cuando el centro crezca, se mantengan estas dos plantas en el resto de edificaciones. El modulo que contiene las aulas de secundaria se dispone paralelo a la avenida de México y el que va a contener las aulas de bachillerato paralelo a la calle Venezuela.



El acceso peatonal se realizará por la avenida de México, accediendo al vestíbulo que se establece como charnela de dos ejes de comunicación perpendiculares. Junto al mismo tenemos la zona de Secretaria, Administración y Despacho de Director. En dicho vestíbulo se encuentra el núcleo principal de comunicaciones verticales, formado por una escalera y un ascensor adaptado. La salida al patio posterior y zona de pistas deportivas se produce desde dicho vestíbulo.




El eje noreste- suroeste, paralelo a la avenida de México, se ubican cinco aulas de secundaria y tres aulas específicas. Con un pasillo central y aulas a ambos lados. En el extremo sur del edificio se desarrolla el segundo núcleo de comunicación vertical formado por una escalera y los aseos de alumnos. Se dispone de un total de treinta plazas de aparcamiento, siendo dos de ellas accesibles y una zona de estancia para parada de autocar escolar.






Realizamos un trabajo integral. Nuestros proyectos abarcan desde la concepción del plan hasta la ejecución 360º.